Cyfrowa inwentaryzacja schodów z wykorzystaniem skanowania 3D i modelu BIM
Dokładna inwentaryzacja schodów i elementów komunikacji zewnętrznej to kluczowy etap przed rozpoczęciem przebudowy. W jednym z naszych ostatnich projektów wykonaliśmy precyzyjne skanowanie 3D istniejącej konstrukcji stalowej schodów oraz przygotowaliśmy kompletną dokumentację cyfrową w technologii BIM. Projekt był realizowany pod dużą presją czasu i stanowił odpowiedź na pilną potrzebę inwestora.
Cel projektu: przygotowanie do gruntownej przebudowy
Celem prac była kompletna inwentaryzacja istniejących schodów, podestów, słupów nośnych oraz wejść do lokali, które z biegiem lat zostały wyraźnie nadszarpnięte zębem czasu i wymagały gruntownej przebudowy. Inwestor nie dysponował aktualną i wystarczającą dokumentacją techniczną, co uniemożliwiało formalne zgłoszenie prac budowlanych. Cyfrowe odwzorowanie konstrukcji z wykorzystaniem skanowania laserowego okazało się najskuteczniejszym rozwiązaniem, pozwalającym szybko i precyzyjnie pozyskać niezbędne dane.
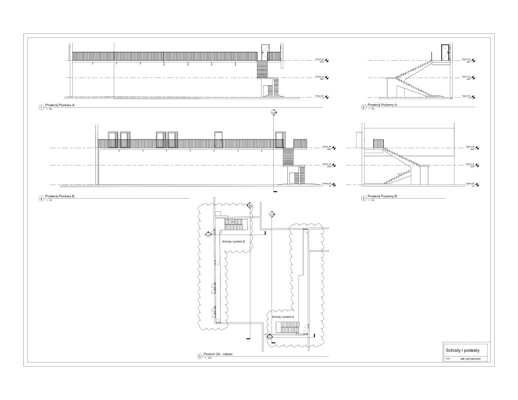
Zakres prac: skan 3D, model Revit, przekroje i dane dla projektantów
Na podstawie skaningu laserowego przygotowaliśmy kompletny zestaw danych:
- Szczegółową chmurę punktów obejmującą schody, podesty, fundamenty, słupy oraz wejścia do lokali oraz jego eksport do formatu IFC
- Model 3D w Autodesk Revit, odzwierciedlający geometrię konstrukcji i poziomy wejść,
- Dokładne rzędne wysokościowe, rozstawy i wymiary elementów konstrukcyjnych,
- Przekroje i rzuty w formacie DWG/DXF,
- Interaktywną przeglądarkę RealView, umożliwiającą łatwą eksplorację modelu w chmurze punktów.
W projekcie szczególnie istotne było odwzorowanie belek dwuteowych zakotwionych w ścianach, które stanowiły kluczowy element nośny planowanej przebudowy.

Dlaczego skanowanie 3D było kluczowe?
Inwestor po raz pierwszy zdecydował się na wykorzystanie technologii skanowania 3D w celu inwentaryzacji konstrukcji. Dzięki temu:
- Udało się błyskawicznie pozyskać wszystkie potrzebne dane geometryczne,
- Wyeliminowano ryzyko błędów pomiarowych charakterystycznych dla tradycyjnych metod,
- Umożliwiono projektantom i wykonawcom szybkie rozpoczęcie formalnych procedur.
Skanowanie laserowe okazało się niezastąpione w przypadku złożonej geometrii i ograniczonego czasu realizacji.

Efekt końcowy: model BIM gotowy do dalszych prac projektowych
Dzięki zastosowaniu metodyki BIM (Building Information Modeling) z wykorzystaniem modelu Revit, inwestor otrzymał kompletny zestaw danych, który może być bezpośrednio wykorzystany przez projektantów i konstruktorów. Dokumentacja została przygotowana w ciągu zaledwie kilku dni roboczych od momentu pomiaru w terenie.

Dowiedz się więcej
Jeśli interesuje Cię:
- Skanowanie 3D konstrukcji stalowych,
- Inwentaryzacja schodów i komunikacji zewnętrznej,
- Modele BIM i dokumentacja Revit dla projektantów,
zobacz inne nasze realizacje lub skontaktuj się z nami, by otrzymać indywidualną wycenę.

